Nieuwe drinkwateraftakking
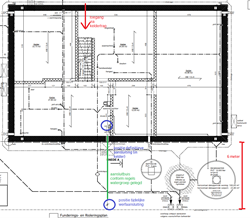
Voeg bij je aanvraag voor een nieuwe drinkwateraftakking ook een grondplan van de woning toe. Op dit grondplan staat duidelijk het meterlokaal, inclusief de afmetingen van het lokaal en de plaats van de watermeter (niet enkel de energiebocht).
Voeg ook een korte omschrijving van deze plaats toe, bijvoorbeeld: in de garage, bovengronds, tegen de rechterzijmuur, in de kelder …
Voorbeeld (klik op de foto om te vergroten):
Voeg bij je aanvraag voor een nieuwe drinkwateraftakking een inplantingsplan op schaal toe met aanduiding van de rooilijn (eigendomsgrens) en de afstand tot de woning.
Vermeld op dit plan zeker ook het perceelnummer. Beschik je niet over een perceelnummer? Vermeld dan de huisnummers links en rechts van jouw pand op het plan.
Voorbeeld:

De Watergroep biedt de mogelijkheid om de watermeter op een aantal domoticasystemen aan te sluiten. Indien je dit nu of in de nabije toekomst wenst, gelieve dit dan al te melden bij jouw aanvraag voor een nieuwe drinkwateraftakking. Dit om te vermijden dat we nadien extra kosten moeten aanrekenen voor het plaatsen van een andere watermeter.
Heb je interesse in deze service? Neem dan contact op met ons klantencontactcenter.
= dit is de plaats is waar de mantelbuis via de muur/kelder de woning binnenkomt.
Je staat als klant zelf in voor de de gas- en waterdichte afdichting van de muurdoorgang. Dit doe je best onmiddellijk nadat we bij jou thuis de aftakking hebben uitgevoerd!
- Zorg voor een ruimte waar de watermeter vlot en zonder gevaar toegankelijk is. Deze ruimte dient voldoende hoog (minimum 2,20 m), goed verlicht en vorstvrij te zijn.
- De ruimte grenst aan de buitenmuur het dichtst bij de rooilijn.
- De watermeter hoort niet thuis in ruimtes met een privékarakter, zoals badkamer, keuken, toilet, slaapkamer …
- De standaard aftakking wordt steeds loodrecht op de as van de rijweg uitgevoerd. Alle afwijkingen dienen voor de bouwwerken te worden gemeld aan De Watergroep.
- De watermeter kan pas geplaatst worden wanneer het gebouw wind- en waterdicht is.
- De watermeterconfiguratie wordt onmiddellijk aan het intredepunt van de aftakking geplaatst. Als de aftakking daardoor uitmondt in een ruimte met privékarakter kan hierop – na overleg met De Watergroep – een uitzondering toegestaan worden.
- Rond de watermeterconfiguratie dient een zone van min. 60 cm hoog en 120 cm lang vrij te worden gehouden van eventuele kabels of andere buizen.
- Zorg ervoor dat de ruimte tussen het intredepunt en de watermeter vrij blijft van andere obstakels. Toezicht, vervanging, herstelling en meteropname dienen op elk moment eenvoudig te kunnen gebeuren. De watermeterconfiguratie dient gemakkelijk bereikbaar te blijven, zo zijn inbouwkasten niet toegelaten.




